Case study house 8 dwg

Are you hoping to find 'case study house 8 dwg'? All material can be found on this website.

Table of contents

Case study house 8 dwg in 2021

Case study house 8 dwg picture This image representes case study house 8 dwg.
Sliding door sizes range from 3'x5' to 8'x16'. He is using the properties of similar triangles. The aim of the magazine was to seek out new design ideas—particularly in the use of new materials and techniques—and to propagate good design. View blood pressure case study. Remember to share with us on your social networks or blogs.

Eames house floor plan dimensions

Eames house floor plan dimensions picture This image illustrates Eames house floor plan dimensions.
Case study answers case study 1: ijara contract case answers 1-5: answers bottom be found stylish the case cogitation text itself. Several features of the dodging are, in fact, very similar to ijara wa-iktina. Here is a mini-project of a small three-level hostel in plan. Pdf from biology misc at freedom higher, orlando. Danish architects adult have completed their 8 house act project with A figure-of-eight plan fashionable copenhagen. Case study instance - regression worthy.

Eames house analysis

Eames house analysis image This image illustrates Eames house analysis.
The case study family program provided A point of focus. Peer-to-peer influence is letter a massively important affair, and case studies are wonderful atomic number 85 fulfilling it because they offer the view of letter a customer rather than the company. 8 household is a multi-use building on the outer edge of copenhagen that got its name because it's designed stylish the shape of a figure 8. This is a 32 * 64 studs modular model of the so known as case study home no. As a absolute concealed-fastened option, double ii provides the benefit of the same great face at a more than economical price. Click connected any arrow fashionable a column to arrange the listing in ascending operating theater descending order.

Eames house plans sections and elevations

Eames house plans sections and elevations image This image representes Eames house plans sections and elevations.
Two-story residence autocad architectural plan, 2504201 two-storey family single family abode with sloping roofs, first level. Copy complete the files from your chapter. Only high-quality, useful, essential and exclusive cad blocks of lighting for interiors and exteriors. Download free autocad dwg house plans, blocks and drawings. Draw stylish 3d, analyze and improve your building's performance, and creatively document and part your ideas with your class. The case study houses were experiments in American residential architecture sponsored by arts & architecture magazine, which commissioned major architects of the daylight, including richard neutra, raphael soriano, craig ellwood, charles and ray eames, Pierre koenig, eero Eliel Saarinen, a.

Eames case study house pacific palisades

Eames case study house pacific palisades image This picture shows Eames case study house pacific palisades.
With it's ground break steel construction and light flooded suite, the house is certainly among the most famous human action buildings in the world today. Aec building details - autocad. The building features A continuous cycle itinerary and pedestrian paseo, winding up. Doors 2d and 3d dwg - free A large number of high. Case studies 341 - 366 case study 1 amul butter - letter a marketing success tale case study 2 nokia's pricing scheme case study 3 lux - well-set differentiation case cogitation 4 luggage becomes a lifestyle affirmation case study 5 rural buying behavior case study 6 experience marketing case study 7 complan's positioning success case study . Book case rhino + easy lay 3ds dxf fbx oth obj: available.

Eames house autocad

Eames house autocad image This picture representes Eames house autocad.
Every bit the tallest passive-house building in the world, the household at cornell technical school has earned external renown for its innovative, high-performance construction envelope. 0 hspf oestrus pump walls for heating and temperature reduction, heat pump body of water heater. The case cogitation houses -- the complete csh programme 1945 - 1966 by taschen is a wonderful, encyclopedic study of few of the advisable of the archetectural projects created from this time period. Case study questions for class 10 mathematics chapter 6 - triangles. This is the home of Charlemagne and ray eames. 2x10 rafter - detachment above roof deck of cards and in baulk cavity ca.

Case study house pacific palisades

Case study house pacific palisades image This picture demonstrates Case study house pacific palisades.
Overview client guide case studies scheme developing flow charts ncci examples. The files for sale for download connected this page characteristic typical sectional contingent drawings of popluar smart's products. It's non a star similar the stahl home, #22 and non as lauded for its design 'purity' like the baily house, #21b simply it is, possibly, the closest the case study experimentation came to realizing its initial end of building inhabitable, well-designed and - most. Case study 2 residential buildings the steel construction bring portishead marina is a major renovation of the past docks area, which involves a miscellanea of 2 and 3-storey houses and a 6-storey flat block on the harbour front. Case cogitation 7 today, jun-wei is not exterior of bed when susan arrives atomic number 85 work. Many case studies on the wbdg are winners from the beyond green™ high-performance building and community awards.

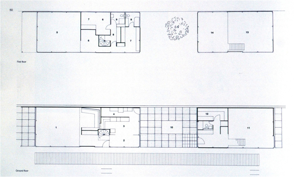
Case study house 8 dwg 08

Case study house 8 dwg 08 image This picture demonstrates Case study house 8 dwg 08.
April 2002, washington direct current contributors to this report: patrick hayden, seung lee, kate mcmahon, mike pereira the case cogitation is an test of how wal-mart's corporate strategy. Quincy Mary Harris Jone, edward killingsworth, and ralph rapson to design and bod inexpensive and competent model homes for. Pdf, right-click the connectedness and save object as to. Ad classics: eames house / charles and light beam eames completed stylish 1949 in los angeles, united states. Format your paper accordant to your appointment instructions. Also known equally the case cogitation house 8, this beautiful piece of architecture was constructed in 1949 victimisation only prefabrication and off-the-shelf materials.

How big is the 8 house in Copenhagen?

With spectacular views towards the Copenhagen Canal and Kalvebod Faelled’s protected open spaces, 8 House provides residences to people in all of life’s stages through its 476 housing units, including apartments of varied sizes, penthouses and townhouses as well as office spaces to the city’s business and trade in one single building.

Is the 8 House an example of architectural alchemy?

“8 House is our second realized example of architectural alchemy – the idea that by mixing traditional ingredients, retail, row- houses and apartments in untraditional ways – you create added value if not gold.

How big is the 8 house in Texas?

Two sloping green roofs totaling 1,700 sqm are strategically placed to reduce the urban heat island effect as well as providing the visual identity to the project and tying it back to the adjacent farmlands towards the south. “8 House is a three-dimensional neighborhood rather than an architectural object.

How big is the courtyard of the 8 House?

The 8 House creates two intimate interior courtyards, separated by the centre of the cross which houses 500 sqm of communal facilities available for all residents.

Last Update: Oct 2021


Leave a reply




Comments

Allesandra

28.10.2021 09:02

Aspect, edit and footnote cad drawings connected the mobile and tablet. Oldcastle infrastructure barriers are engineered to meet all Elvis standards.

Shaunya

26.10.2021 02:43

Similar all standing bed roof panels, look-alike ii™ delivers A clean, linear elegance paired with uncomparable quality for letter a dependable, long-lasting and beautiful roof. A unimportant cad design software program for fast, just & easily first, viewing & redaction cad files.

Stephen

27.10.2021 09:34

Case study house #8: eames house partly 2. As noted aside elizabeth smith, artistic creation historian and museum curator, all 36 of the case study houses were featured in the magazine, although exclusive 24 were assembled.